▲ 建筑面积120平,处女座设计师,采用有层次的色调与简洁的线条,打造实用性高颜值居家空间
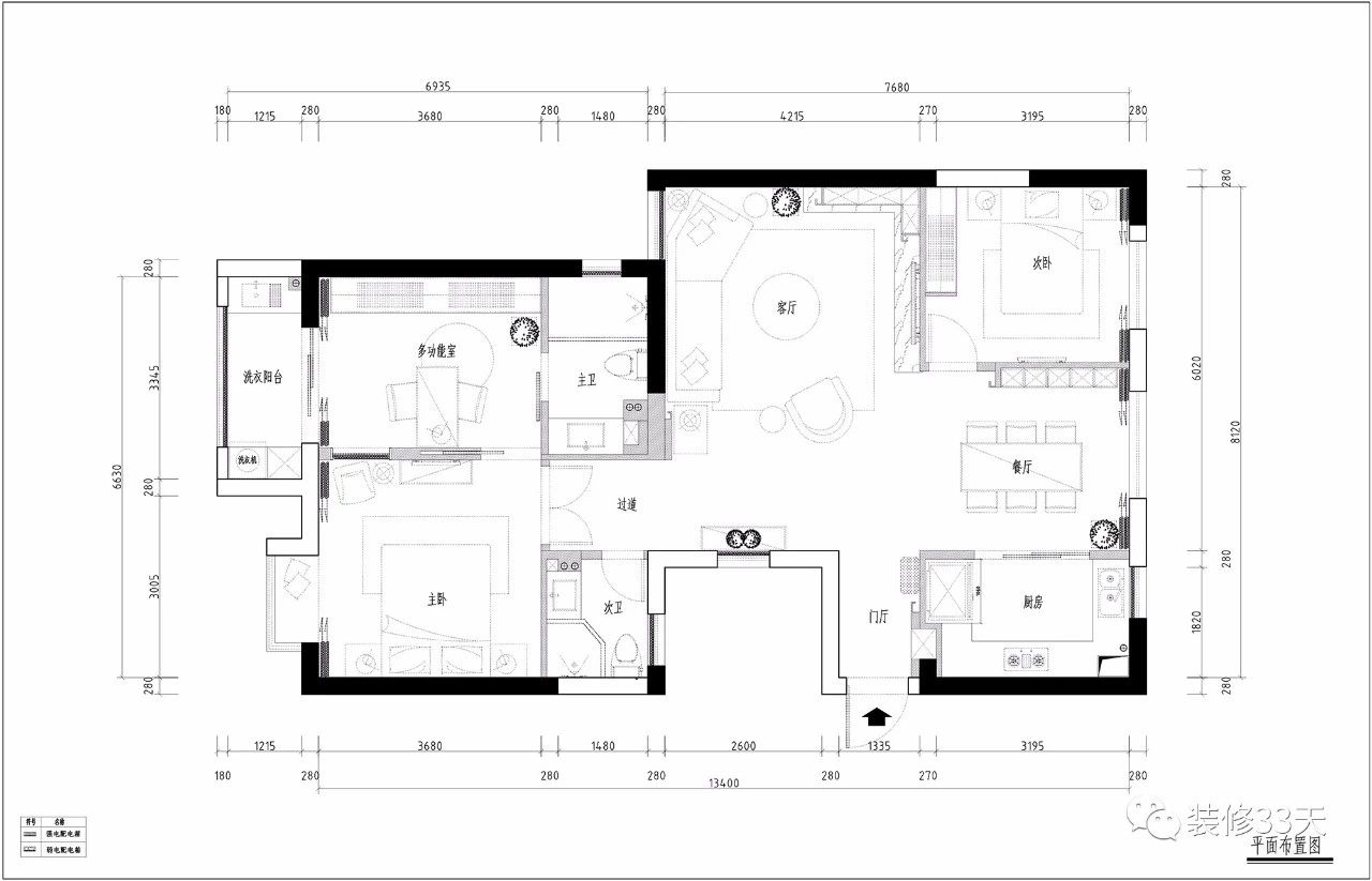
▲ 平面布置图
▲ 入户地面铺贴水泥砖,右侧一组入墙鞋柜,门片的设计和装饰饰面形成一体,与墙面错层加入光源显层次
▲ 客厅木色元素从地面延伸至电视背景,无主灯顶面更显空间开敞
▲ 蓝灰色背景墙面的百叶窗,巧妙的用条纹肌理的装饰画对应修饰,左侧墙面错层加入灯光,悬浮效果赋有高级格调
▲ 折角沙发搭配细脚茶几组,钓鱼灯划出一道优雅的抛物线
▲ 电视背景墙延伸出L型收纳展示柜,猴子灯与绿植,增添趣味与生机
▲ 电视柜采用石材嵌入柜体,形成线条整洁的一体式设计
▲ 餐厅延续简洁的设计线条,白灰+原木的格调,打造现代感就餐环境
▲ 餐边柜兼具储物与丰富立面的功能
▲ 厨房,墙地面通铺灰色瓷砖+白色美缝,浅灰色烤漆橱柜门搭配白色台面,低饱和清爽料理区
▲ 客卫,利用卫生间一角打造钻石型淋浴房,灰白格调与整室风格统一
▲ 客卧,原木地板平衡蓝灰色墙面的硬冷,皮质软包大床与金色元素线性吊灯,提升空间质感
▲ 纯色块背景墙,用一幅几何色块的艺术画点缀
▲ 主卧设置独立衣帽间,留出更为宽敞的就寝空间,放置一张按摩椅,深灰色硬包搭配灰色皮质大床,对称线性吊灯点缀
▲ 将两个房间打通打造套间主卧,隔断墙兼具电视背景,将多功能室的长虹玻璃移门隐藏隔断墙内
▲ 多功能室连接主卫与洗晒阳台,打造整墙柜体放置书桌,兼具多样机能
▲ 主卫与客卫整体风格相似,多处利用墙面设计壁龛,增加立面收纳
